Chủ đầu tư
Phạm Minh Đức
Mã sản phẩm: BT626062
Số tầng: 3 tầng
Phong cách: Biệt thự hiện đại
Kinh phí: 4 tỷ
Địa điểm: Hòa Bình
Diện tích: Từ 150m2- 250m2
Mặt tiền: 15m
Thông số
+ Diện tích: 200m2/sàn
+ Thông số diện tích, công năng:
- Tầng 1: Gara ô tô: 35.5m2, Sảnh phụ 9.6m2, Sảnh trung tâm: 12,4m2, Phòng khách: 41.8m2, Bếp ăn: 34,8m2, Phòng ngủ 1: 15,1m2, WC1: 4.8m2.
- Tầng 2: Phòng Sinh hoạt chung: 29.1m2, Phòng ngủ 2: 34,5m2, Phòng thay đồ: 14m2, Wc2: 9,2m2, Phòng ngủ 3: 34.3m2, WC3: 7.5m2. , Phòng ngủ 4: 25.2m2
- Tầng 3: Sảnh trung tâm; 11.7m2, Phòng làm việc: 42m2, Khu giặt phơi: 22.5m2, Phòng kho: 7.5m2, Phòng thờ: 23.8m2,
Tham khảo phương án mẫu nhà biệt thự 3 tầng có gara với vẻ đẹp đầy mới mẻ và hiện đại. Công trình này được đánh giá cao bởi kiến trúc sang trọng, rộng rãi. Đồng thời, phù hợp với nhu cầu công năng sử dụng hiện nay của nhiều gia đình. Công trình được đánh giá cao với quy mô và diện tích sử dụng rộng rãi, đem lại sự lựa chọn tối ưu cho khách hàng và người sử dụng. Cùng tham khảo chi tiết phương án thiết kế mẫu nhà biệt thự 3 tầng có gara trong những hình ảnh và nội dung dưới đây được chia sẻ:
Hiện nay, nhu cầu sử dụng của mẫu nhà biệt thự 3 tầng có gara ngày càng tăng cao. Không gian sống đòi hỏi nhiều tiện nghi, hiện đại. Đồng thời đem đến sự hài lòng tuyệt đối cho chủ đầu tư. Yêu cầu và đòi hỏi của chủ đầu tư ngày càng cao về một không gian sống trọn vẹn và rộng rãi. Khi tìm đến MONEO chia sẻ về nhu cầu thiết kế, xây dựng ngôi nhà biệt thự 3 tầng có gara... đưa đến. Một số yêu cầu thiết kế của mẫu nhà như sau:
- Xây dựng nhà với diện tích khoảng 200- 250m2/sàn
- Phong cách thiết kế hiện đại
- Thiết kế có gara ở bên trong, đảm bảo nhu cầu sử dụng của nhiều gia đình.
- Thiết kế theo phong cách tối giản nội thất, không gian sử dụng, công năng tiện nghi, mới mẻ
... Với những yêu cầu đó, mẫu nhà biệt thự 3 tầng có gara được chúng tôi lên ý tưởng thiết kế và hoàn thiện. Đáp ứng được đầy đủ nhu cầu và mong muốn của chủ đầu tư. Phương án thiết kế được hoàn thiện sẽ giúp chủ đầu tư vô cùng hài lòng về công trình này. Cùng tham khảo chi tiết phương án thiết kế mẫu nhà biệt thự 3 tầng có gara đẹp dưới đây:

Hình ảnh phối cảnh: Mẫu nhà biệt thự 3 tầng có gara hiện đại đẹp
Phong cách kiến trúc luôn tạo được ấn tượng cho người đối diện. Sở hữu được một ngôi nhà mang phong cách hiện đại chính là mơ ước của rất nhiều chủ đầu tư hiện nay. Đặc biệt, trong thiết kế kiến trúc, phong cách hiện đại được xem như là sân chơi của những ai yêu thích sự tự do, phóng khoáng. Vẻ đẹp ấn tượng và trọn vẹn của những chi tiết trong mẫu nhà biệt thự 3 tầng có gara hiện đại này sẽ khiến bạn vô cùng hài lòng. Một vài đặc trưng về mẫu thiết kế được thể hiện ở ngoại thất công trình. Bao gồm:
Nếu như các căn biệt thự cổ điển gắn liền với các gam màu chính như trắng, vàng, nâu hoặc các gam màu tối thể hiện sự trang nghiêm, cổ kính, đặc biệt với các tòa biệt thự lâu đài thì phong cách hiện đại lại có sự đổi mới toàn diện. Tông màu chủ đạo của các căn biệt thự phố hiện đại hay biệt thự vườn hiện đại là các tông màu tươi sáng và trẻ trung như màu trắng, xám kết hợp với các chi tiết nổi bật với màu vàng, cam hoặc đỏ phù hợp với nhịp sống hiện đại và năng động ngày nay. Ở mẫu thiêt kế nhà biệt thự 3 tầng có gara này, những mảng màu sáng ( màu trắng) và gam màu tối trầm ( màu gỗ tự nhiên) kết hợp với nhau tạo nên hiệu ứng màu sắc vô cùng mới lạ và độc đáo cho công trình. Đồng thời, đây cũng được xem như là đặc trưng giúp cho không gian kiến trúc của ngôi nhà trở nên nổi bật và hoàn thiện vô cùng. Màu sắc giúp cho không gian kiến trúc trở nên nổi bật và hoàn thiện hơn. Đồng thời, các chi tiết và màu sắc được sử dụng linh hoạt, kết hợp hài hòa với nhau để tăng thêm hiệu quả thẩm mỹ cho công trình.
Ngoài màu sơn ngoại thất, thì công trình còn được hoàn thiện bởi các loại vật liệu sử dụng. Từ các màu sắc đó kết hợp hài hòa với nhau để đem lại hiệu quả thẩm mỹ tối ưu cho mẫu thiết kế.

Hình ảnh phối cảnh: Mẫu nhà biệt thự 3 tầng có gara hiện đại đẹp
Một trong các đặc trưng nổi bật của biệt thự phong cách hiện đại đó là thiên về các đường nét thiết kế khỏe khoắn và gọn gàng. Và đặc trưng này càng được thể hiện rõ ràng và hợp lý trong mẫu nhà biệt thự 3 tầng có gara. Khác biệt của phong cách này chính là các đường thẳng song song với mảng khối hình học, các đường nét dứt khoát và cứng rắn. Đi cùng với đó là lối kiến trúc không quan trọng tính đối xứng, tỷ lệ mà tự do, sáng tạo và phóng khoáng. Sự hấp dẫn của hình khối kiến trúc và mới mẻ trong cách sắp xếp hình khối đã tạo thành được một thiết kế vô cùng chỉn chu và độc đáo. Hình khối thẳng, vuông, chữ nhật xếp chồng lên nhau làm tăng thêm hiệu ứng thẩm mỹ, thị giác cho công trinh này. Những khối nhà được kết nối, nối tiếp với nhau, từ đó tăng thêm hiệu quả, cũng như giá trị thẩm mỹ tối ưu cho ngoại thất của công trình.
Sự tập trung vào hình khối kiến trúc, mảng miếng làm tăng thêm hiệu ứng thị giác cho công trình. Điều này hoàn toàn đối lập với kiến trúc ngoại thất của phong cách tân cổ điển. Các chi tiết trang trí cầu kì và công phu là đặc trưng của phong cách cổ điển. Hoàn toàn đối lập và khác biệt.
Thêm một đặc điểm giúp các gia đình nhận biết các ngôi nhà hiện đại so với biệt thự cổ điển hay tân cổ điển đó chính là ưu tiên sử dụng các chất liệu công nghiệp vào trong xây dựng như bê tông, kính hay các sản phẩm nội thất với thiết kế và tông màu tối giản. Đặc trưng này khiến cho nó khác biệt hẳn so với các công trình biệt thự mang hơi hướng cổ điển trước đây nơi các họa tiết, phào chỉ phức tạp chính là điểm nhấn.
Những chất liệu hiện đại được sử dụng trong mẫu nhà biệt thự 3 tầng có gara bao gồm: các chi tiết gạch và đá ốp ngoại thất, sơn ngoại thất, cây xanh, gỗ ốp trần... đều giúp tăng thêm hiệu quả thẩm mỹ cho không gian ngoại thất của ngôi nhà biệt thự hơn rất nhiều. Những loại vật liệu này được sử dụng cũng đều là những vật liệu thuộc mức cao cấp. Do đó, chi phí xây dựng và hoàn thiện cho mẫu nhà biệt thự 3 tầng có gara hiện đại cũng tương đối cao.

Hình ảnh phối cảnh: Mâu nhà biệt thự 3 tầng có gara hiện đại
Mẫu còn được biết tới là loại hình biệt thự mở bởi nó tập trung chính vào không gian mở và hạn chế việc phân chia không gian. Các bức tường phân chia không gian, thiết kế riêng biệt, kín đáo nay được lược bỏ để tạo ra các kết nối mở, thông thoáng hơn cho cả không gian bên trong và bên ngoài. Không gian kiến trúc rông rãi và thoáng đãng kết hợp với nhau, Tạo nên những khoảng không gian vô cùng hợp lý và tuyệt diệu. Có thể thấy, yếu tố kết nối với thiên nhiên được đề cao nhất trong tổng thể mẫu thiết kế nhà biệt thự 3 tầng có gara. Kiến trúc sư đã cố gắng tạo thành những mảng kiến trúc kết nối với nhau và đảm bảo được đầy đủ những ý tưởng thiết kế, xây dựng tốt nhất cho khách hàng. Không gian được đề cao sự kết nối với thiên nhiên nhất có thể. Nhờ vào những khoảng ban công, sân thượng, cửa sổ, cho đến các khu vực ban công, bậu cửa.. đều được trồng thêm cây xanh. Đem lại vẻ đẹp có sự gần gũi với thiên nhiên. Đồng thời, hạn chế tối đa sự phân chia không gian trong nội thất của ngôi nhà.
Vật liệu kính hay các vật liệu có tính mở khác được sử dụng phổ biến để gắn kết các không gian. Bên cạnh đó, khu vực phòng ăn, phòng khách hay không gian sinh hoạt chung trở nên liền lạc hơn, cởi mở hơn.
Xem thêm: Phương án 2: Mẫu thiết kế văn phòng làm việc hiện đại 700m2 tại Hà Nội

Hình ảnh: Mẫu nhà biệt thự 3 tầng có gara hiện đại sang trọng
Cùng với những đặc trưng kiến trúc được thể hiện, thì mẫu nhà biệt thự 3 tầng có gara hiện đại cũng được sử dụng hệ thống mái khá chắc chắn và ấn tượng. Thiết kế mái nhật đơn giản. Cùng với độ dốc mái không quá lớn, phù hợp với tổng thể của kiến trúc nhất. Đặc biệt hơn, những chi tiết mái này kết hợp một cách hài hòa với kiến trúc, mang lại cho công trình giá trị tuyệt vời nhất. Mái được làm theo kết cấu đổ mái bằng. Sau đó lợp vì kèo sắt hộp lên trên. Đồng thời với đó, loại ngói được sử dụng để hoàn thiện cho công trình là ngói màu bê tông xám tro. Màu sắc mái này cũng rất phù hợp với tổng thể phong cách kiến trúc. Loại mái này cũng có đặc trưng, ưu điểm là giá thành hợp lý, dễ tìm thấy trên thị trường hiện nay, đồng thời có độ bền cao, độ bền màu tương đối lớn. Do đó, mà sản phẩm này được sử dụng khá phổ biến trên thị trường Việt Nam cho đến nay. Trong rất nhiều các công trình tiêu biểu khác.
Để hoàn thiện được mẫu nhà biệt thự 3 tầng có gara hiện đại này, chi phí xây dựng dự kiến đưa ra khoảng từ 3.5 tỷ cho đến 4 tỷ hoàn thiện. Chủ đầu tư mong muốn hoàn thiện công trình này ở mức vật liệu cao cấp. Do đó, việc sử dụng vật tư hoàn thiện ở mức cao cũng đem đến cho công trình khoản chi phí đầu tư khá lớn. Bạn có thể điều chỉnh tùy ý các loại vật tư ở mức khác nhau để đảm bảo được chất lượng vật tư xây dựng được điều chỉnh phù hợp nhất với nhu cầu chi phí đầu tư của cả gia đình.
Xem thêm: Độc đáo với mẫu biệt thự hiện đại 200m2 nâng tầm đẳng cấp
Cách thức bố trí và sắp xếp mặt bằng công năng sử dụng cho ngôi nhà như thế nào cũng vô cùng quan trọng. Đặc biệt là đối với những thiết kế nhà ở mang phong cách hiện đại. Thì việc sắp xếp bố cục theo phong cách này, cùng với cách thiết kế nội thất tối giản theo yêu cầu của chủ đầu tư cũng rất được quan tâm và coi trọng. Chính bởi thế, mà phương án thiết kế kiến trúc của công trình được hình thành với đầy đủ những mong muốn, sự yêu thích từ kiến trúc sư về không gian sống tối ưu, trọn vẹn này. Mặt bằng công năng cũng là yếu tố quan trọng hàng đầu trong quy trình thiết kế. Khách hàng cần duyệt trước phương án thiết kế mặt bằng công năng thì mới có thể thực hiện được các giai đoạn tiếp theo trong tổng thể quy trình làm việc, thiết kế của ngôi nhà. Một số vấn đề bạn cần lưu ý trong cách thức bố trí công năng sử dụng cho mẫu nhà biệt thự 3 tầng có gara hiện đại được thể hiện trong bản vẽ thiết kế dưới đây:

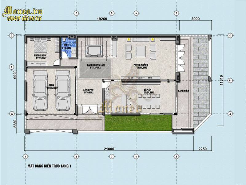
Mặt bằng tầng 1: Mẫu nhà biệt thự 3 tầng có gara hiện đại
Mặt bằng công năng tầng 1 bao gồm: : Gara ô tô: 35.5m2, Sảnh phụ 9.6m2, Sảnh trung tâm: 12,4m2, Phòng khách: 41.8m2, Bếp ăn: 34,8m2, Phòng ngủ 1: 15,1m2, WC1: 4.8m2. Bản vẽ mặt bằng công năng sử dụng của tầng 1 được thể hiện khá rõ ràng nhu cầu sử dụng thực tế cũng như đặc trưng của công trình này. Cách thiết kế và sắp xếp bố cục công năng của công trình cũng tuân thủ tuyệt đối nguyên tắc thiết kế kiến trúc, nội thất hiện đại. Đó là sự kết nối không gian các phòng. Hạn chế việc phân chia không gian và tạo nên những khoảng không gian tự nhiên, kết nối một cách chân thực, thực tế với nhau.
Diện tích và vị trí của gara ô tô trong mẫu nhà biệt thự 3 tầng có gara hiện đại được quan tâm nhất. Diện tích của gara lớn lên đến hơn 35m2, đủ sức chứa cho 2 chiếc ô tô cho gia đình. Điều này thỏa mãn được nhu cầu sử dụng thực tế của chủ đầu tư về không gian sử dụng này. Đặc biệt, vị trí của gara ô tô gần ngay với cửa ra vào của công trình cũng đảm bảo được tính thuận tiện cho việc di chuyển và cất giữ xe trong quá trình sử dụng thực tế của gia đình. Cùng với gara, thì bạn có thể thấy khu vực, diện tích của sảnh phụ, và sảnh trung tâm rộng rãi đảm bảo được nhu cầu sử dụng của gia đình. Không gian của phòng khách và phòng bếp ăn được ưu tiên sử dụng với diện tích rộng rãi và thoáng đãng. Đồng thời, diện tích này cũng đảm bảo được sự kết nối không gian với nhau. Không sử dụng các chi tiết tường ngăn chia không gian, thay vào đó sử dụng kệ ti vi, cũng như kệ phân chia không gian... đem đến sự hoàn thiện vô cùng chỉn chu cho không gian nội thất mẫu nhà biệt thự 3 tầng có gara ô tô hiện đại.

Hình ảnh mặt bằng tầng 2: Mẫu nhà biệt thự 3 tầng có gara diện tích 120m2
Mặt bằng công năng sử dụng tầng 2 bao gồm: Phòng Sinh hoạt chung: 29.1m2, Phòng ngủ 2: 34,5m2, Phòng thay đồ: 14m2, Wc2: 9,2m2, Phòng ngủ 3: 34.3m2, WC3: 7.5m2. , Phòng ngủ 4: 25.2m2. Có thể nói, ở những mẫu nhà biệt thự 3 tầng có gara hiện đại như công trình này, thì KTS rất coi trọng việc sử dụng và tạo nên những không gian sinh hoạt chung cho toàn bộ gia đình. Đặc biệt như các không gian của phòng sinh hoạt chung. Phòng này thường có diện tích khá rộng rãi, lên đén 29m2. Được đặt ở vị trí trung tâm của ngôi nhà nên rất dễ dàng và thuận lợi cho việc di chuyển, đi lại trong ngôi nhà. Đây cũng là không gian vô cùng ấm áp mà cả gia đình có thể chơi đùa, có những giây phút hạnh phúc và bình yên bên nhau.

Mặt bằng tầng 3: mẫu nhà biệt thự 3 tầng có gara diện tích 200m2
Mặt bằng tầng 3 bao gồm các không gian như: - Tầng 3: Sảnh trung tâm; 11.7m2, Phòng làm việc: 42m2, Khu giặt phơi: 22.5m2, Phòng kho: 7.5m2, Phòng thờ: 23.8m2,
Phòng làm việc được ưu tiên ở khu vực với tầm view đẹp mắt, cùng với không gian vô cùng sang trọng và đẳng cấp như thế này. Đây được xem như là thiết kế đầy ấn tượng, phù hợp với không gian kiến trúc hiện đại, Cũng như nhu cầu thực tế hiện nay của nhiều chủ đầu tư và gia đình.
MONEO rất vui và hạnh phúc vì được chủ đầu tư - khách hàng của công trình này vô cùng hài lòng. Phương án thiết kế được duyệt thị công. Và những hình ảnh thực tế của công trình sẽ được chúng tôi cập nhật trong thời gian sớm nhất.
Liên hệ để được tư vấn: 0945.66.16.16
Đăng ký tài khoản
Đăng nhập tài khoản