Chủ đầu tư
Chị Hà
Mã sản phẩm: NP218110
Số tầng: Trên 4 tầng
Phong cách: Biệt thự tân cổ điển
Kinh phí: 6 tỷ
Địa điểm: Đang cập nhật
Diện tích: Đang cập nhật
Mặt tiền: 9m
Thông số
- Cải tạo mặt tiền nhà 7 tầng phong cách tân cổ điển
- Kích thước mặt tiền:9m
- Chiều sâu: 18m
Mẫu nhà 7 tầng phong cách tân cổ điển được chúng tôi thực hiên cải tạo theo yêu cầu của chủ đầu tư. Chị Hà - Ở Hà Nội. Là một trong những địa chỉ tư vấn thiết kế và thi công nhà ở, biệt thự cao cấp uy tín trên cả nước, chị rất tin tưởng và đặt tâm huyết của mình vào Kiến trúc MONEO. Với mong muốn cải tạo lại ngôi nhà của mình để nhằm mục đích sử dụng vừa để ở và kinh doanh. Phương án thiết kế nhà 7 tầng phong cách tân cổ điển được KTS của chúng tôi thực hiện và hoàn thiện. Mang lại sự hài lòng tuyệt đối với khách hàng.

Hình ảnh thực tế: Cải tạo mẫu nhà 7 tầng phong cách tân cổ điển ở Hà Nội
Không khó hiện nay để bắt gặp được những công trình nhà ở, biệt thự mang phong cách tân cổ điển.Phong cách này thể hiện được sự sang trọng, cầu kì và công phu vô cùng. Sự đặc biệt trong từng chi tiết bố cục, hình khối, cũng như màu sắc đem lại giá trị cho công trình đó. Chính bởi thế, mà phong cách này luôn được lòng những người yêu thích nghệ thuật, yêu thích sự sang trọng và xa hoa lộng lẫy, Chị Hà - chủ nhân của ngôi nhà này cũng không cưỡng lại được vẻ đẹp đầy ẩn ý đó.
Tìm đến Kiến Trúc MONEO với mong muốn cải tạo ngôi nhà của mình theo phong cách đó, mẫu nhà 7 tầng phong cách tân cổ điển được chị đưa ra yêu cầu KTS của chúng tôi thực hiện. Nắm bắt được sở thích, mong muốn, cũng như nhu cầu sử dụng của gia đình, KTS MONEO đã đưa ra phương án thiết kế nhà 7 tầng phong cách tân cổ điển như bên dưới. Dựa trên những yêu cầu của chủ đầu tư như:
- Cải tạo mặt tiền nhà 7 tầng phong cách tân cổ điển
- Kích thước mặt tiền:9m
- Chiều sâu: 18m
- Tầng 1 & 2: Dùng để kinh doanh, cho thuê mặt bằng,...
- Màu sắc chủ đạo: Màu trắng
- Phong cách kiến trúc: Tân cổ điển
.... và còn nhiều yêu cầu chi tiết khác chúng tôi đã cùng chủ đầu tư trao đổi và tư vấn để đưa ra được phương án thiết kế phù hợp nhất với nhu cầu và sở thích: Mẫu nhà 7 tầng phong cách tân cổ điển được hoàn thiện hồ sơ thiết kế và cải tạo như sau:
Không phải là một phong cách mới, vẻ đẹp mà kiến trúc tân cổ điển mang đến luôn là sự chỉn chu, cẩn thận và cầu toàn. Từ những chi tiết được sắp xếp đầy kỉ luật, cho đến màu sắc được sử dụng... tạo nên một thiết kế mặt tiền nhà 7 tầng phong cách tân cổ điển hoàn thiện và đầy thu hút.
Ngôi nhà với kích thước mặt tiền 9m- kích thước này khá rộng lớn đối với một công trình nhà ở Hà Nội, cho phép việc bố trí và sắp xếp mặt bằng công năng, hay trang trí kiến trúc một cách dễ dàng và thuận tiện hơn. Hơn nữa, mặt tiền 9m cũng rất thuận lợi cho việc kinh doanh, buôn bán. Do đó, tận dụng lợi thế này, mà KTS sẽ khai thác được triệt để về mặt kiến trúc để thuận lợi cho việc kinh doanh.

Cải tạo mặt tiền: Nhà 7 tầng phong cách tân cổ điển đẹp
Kiến trúc mặt tiền mẫu nhà 7 tầng phong cách tân cổ điển đẹp được thiết kế theo đúng những nguyên tắc, chuẩn mực trong kiến trúc tân cổ điển. Thể hiện được rõ ràng tinh thần và tính cách của những công trình mang phong cách này. Cụ thể như:
- Tính đối xứng: Tính đối xứng, cân bằng được thể hiện trong toàn bộ các chi tiết, bố cục cũng như tỷ lệ của mặt tiền công trình. Đối xứng qua trung tâm của ngôi nhà, Tỷ lệ cân bằng sử dụng ở các chi tiết, tăng thêm hiệu ứng thẩm mỹ, sự sang trọng và tỉ mỉ cho công trình nhà 7 tầng phong cách tân cổ điển.
- Sử dụng nhiều chi tiết trang trí: Phào chỉ, cùng những chi tiết vòm cong uốn lượn... là đặc trưng thường thấy ở những công trình mang phong cách này. Mẫu nhà 7 tầng phong cách tân cổ điển cũng không phải là ngoại lệ. Các chi tiết như vòm cong trang trí ở mái, phào chỉ cột, tường, cùng hệ thống con tiện lan can mạ vàng... tất cả đều thể hiện được sự cẩn thận và chỉn chu trong từng chi tiết. Ngôi nhà cũng vì thế mà trở nên trang trọng, hấp dẫn và đầy tính thẩm mỹ.
- Màu sắc ngoại thất: Màu sắc ngoại thất được sử dụng trong công trình này chủ đạo là màu trắng. Đây cũng là gam màu thường thấy trong những mẫu thiết kế mang phong cách tân cổ điển. Màu sắc trắng thể hiện được trọn vẹn sự bề thế, hoành tráng của ngôi nhà. Gam màu này khi sử dụng để trang trí mặt tiền cũng có tác dụng giúp cho ngôi nhà trở nên rộng và thoáng hơn. Nhấn nhá vào mặt tiền là hệ thống cửa sổ bằng kính khung sắt đen, lan can ban công bằng hoa sắt đen nghệ thuật cũng làm tăng hiệu quả, tác dụng thẩm mỹ cho mẫu nhà 7 tầng phong cách tân cổ điển.
Xem thêm: Siêu phẩm thiết kế mẫu biệt thự phong cách địa trung hải 3000m2 siêu sang tại Hưng Yên

Mặt tiền: Mẫu nhà 7 tầng phong cách tân cổ điển đẹp
- Vật liệu cao cấp: Sử dụng để làm hoàn thiện hơn vẻ đẹp của mẫu nhà 7 tầng phong cách tân cổ điển không thể không kể đến đó là hệ thống vật liệu cao cấp được sử dụng. Hoàn toàn sử dụng chất liệu đá để hoàn thiện cho công trình này. Phải kể đến đó là hệ thống đá hoa cương sử dụng ốp toàn bộ mặt tiền tầng 1 và tầng 2 của công trình. Thiết kế này khiến cho mặt tiền ngôi nhà trở nên mới mẻ, sang trọng hơn. Màu sắc vàng của đá kết hợp với độ bóng, sáng, tạo nên thiết kế mặt tiền hoàn chỉnh, cao cấp vô cùng. Sử dụng chất liệu như vậy giúp cho không gian tầng 1 và tầng 2 để kinh doanh thêm phần sang trọng, làm tăng giá trị cho thuê, hoặc giá trị kinh doanh cho khu vực tầng 1 và tầng 2,
Ngoài vật liệu ốp mặt tiền, thì việc sử dung các vật liệu khác như cửa kính, lan can, hay cửa gỗ... cũng tạo thành vẻ đẹp sang trọng và đầy giá trị cho không gian kiến trúc của ngôi nhà này.
- Hệ thống cột ngoại thất mẫu nhà 7 tầng phong cách tân cổ điển: Thức cột trong kiến trúc tân cổ điển đem đến sức hút hấp dẫn vô cùng. Sử dụng hệ thống cột nối dài từ tầng 3 cho đến tầng 7- Điều này tạo thành một tổng thể thiết kế kiến trúc đầy mới mẻ và đỉnh cao. Cột hình trụ, kết hợp với đầu và chân cột được trang trí bằng bệ đầy đặn đem đến sự hoàn hảo và chắc chắn cho thiết kế. Bên cạnh đó, hệ thống cột giả được sử dụng 2 bên thân nhà làm tăng thêm hiệu quả thẩm mỹ cho mẫu thiết kế.
Xem thêm: Giới thiệu mẫu thiết kế biệt thự 3 tầng 120m2 phong cách tân cổ điển sang trọng

Hình ảnh kiến trúc: Mặt tiền nhà 7 tầng phong cách tân cổ điển ở Hà Nội
Cùng với kiến trúc, thì công năng sử dụng của công trình cũng được KTS của chúng tôi thực hiện thiết kế và đem đến trải nghiệm tốt nhất cho chủ đầu tư. Công năng sử dụng sẽ được thực hiện dựa trên những mong muốn của gia đình. Từ thực tế của ngôi nhà, cho đến diện tích của từng sàn, từng tầng... Trong đó, tầng 1 và tầng 2 được tận dụng hoàn toàn làm không gian để kinh doanh, buôn bán. Còn lại các tầng trên là không gian sử dụng cho nhu cầu ở và sinh hoạt của các thành viên trong gia đình.
Sau khi hoàn thiện hồ sơ thiết kế, chúng tôi đã tiến hành bàn giao cho chủ đầu tư. Ngay sau đó, chị và gia đình đã bắt tay vào triển khai ngay cải tạo công trình theo như hồ sơ đã vẽ. Căn cứ vào hồ sơ thiết kế, cùng với tư vấn trực tiếp từ KTS, Kỹ sư MONEO, phương án thiết kế đã được thực hiện triển khai trên thực tế. Nhà thầu thi công tiến hành triển khai theo thiết kế rất dễ dàng, Bởi trong hồ sơ thiết kế chi tiết đã đảm bảo được các yếu tố như:
- Hồ sơ bản vẽ thiết kế phần kiến trúc
- Bản vẽ phần kết cấu
- Bản vẽ phần điện
- Bản vẽ phần nước

Hình ảnh: Mẫu nhà 7 tầng phong cách tân cổ điển sang trọng tại Hà Nội
Việc thực hiện cải tạo nhà 7 tầng phong cách tân cổ điển được thực hiện theo những quy trình sau:
Yêu cầu cải tạo ngôi nhà được gia đình chị Hà thống nhất và đưa ra cho KTS thực hiện.
Chi phí luôn là vấn đề quan trọng, khi cải tạo, sửa chữa nhà hay xây nhà mới điều mà ai cũng quan tâm. Chi phí dự trù ban đầu sẽ quyết định kiến trúc, vật liệu và công năng của ngôi nhà bạn mong muốn. Làm thế nào để dự trù được bao nhiêu tiền để cải tạo ngôi nhà mong muốn. Hãy tìm đến những người thân có kinh nghiệm xây dựng hoặc tìm đến trực tiếp công ty thiết kế và thi công cải tạo để được tư vấn chính xác. Ở công trình này, việc thực hiện cải tạo cần đảm bảo được chi phí tốt nhất. Chi phí dự kiến cho việc cải tạo mẫu nhà 7 tầng phong cách tân cổ điển khoảng 6 tỷ đồng.
Đương nhiên là phải cần tìm đến một đơn vị thiết kế thi công cải tạo rồi. Đây là việc bắt buộc khi quyết định cải tạo nhà. Bạn không nên tự thiết kế bằng cách lấy vài ý tưởng của nhiều ngôi nhà bạn cho là đẹp để gộp lại. Việc bạn cần làm là tìm kiếm và chọn một công ty thiết kế thi công cải tạo uy tín với nhiều công trình tốt đồng hành cùng bạn. MONEO chính là một trong những địa chỉ uy tín và tin cậy như vậy bạn có thể lựa chọn và đồng hành.
Khi đã bạn đã chốt tất cả các thiết kế kiến trúc, công năng, kết cấu, nội thất thì đơn vị thi công sẽ bắt đầu công việc thi công đúng như bản vẽ thiết kế. Nhà thầu xây dựng sẽ đảm bảo được các yêu cầu thiết kế và thi công theo đúng tiến độ, cũng như yêu cầu chi tiết trong hồ sơ thiết kế. Khi đó, nhà thầu xây dựng sẽ triển khai đầy đủ được các yêu cầu trong bản vẽ. Thực hiện đúng như thiết kế đã làm trước đó.

Hình ảnh thực tế: Thi công nhà 7 tầng phong cách tân cổ điển.
Hiện trạng công trình được triển khai theo bản vẽ. Từ ngôi nhà để ở 3 tầng đơn giản ban đầu cải tạo thành không gian trang nghiêm, sang trọng của nhà biệt thự tân cổ điển 7 tầng uy nghi, bề thế. Chất lượng cải tạo mặt tiền được đảm bảo đúng theo thiết kế. Quá trình thi công, chủ đầu tư có thể tìm đến những người có kinh nghiệm, năng lực để quản lý, giám sát thi công. Khi đó, bạn cũng sẽ yên tâm hơn trong suốt quá trình thi công.
Xem thêm: Tổng hợp các mẫu thiết kế biệt thự lâu đài 3 tầng

Hình ảnh: Thi công thực tế cải tạo mặt tiền nhà 7 tầng tân cổ điển đẹp

Cải tạo mặt tiền nhà 7 tầng phong cách tân cổ điển đẹp
Quá trình cải tạo và xây dựng lại ngôi nhà 7 tầng phong cách tân cổ điển tốn kém khá nhiều thời gian và công sức. Mặt khác, với đòi hỏi và nhu cầu sử dụng khá cao của chủ đầu tư, thì yêu cầu tìm kiếm và lựa chọn được một đơn vị tư vấn thiết kế uy tín và trách nhiệm cũng khiến chủ đầu tư suy nghĩ và đắn đo rất nhiều. Tuy nhiên, nhờ sự giúp đỡ của bản vẽ thiết kế, việc thi công hoàn thiện cũng được sát sao, đảm bảo được các yêu cầu thẩm mỹ, kiến trúc, công năng... do đó, chủ đầu tư cũng yên tâm hơn phần nào trong suốt quá trình xây dựng.

Hình ảnh thực tế; Cải tạo mặt tiền nhà 7 tầng đẹp phong cách tân cổ điển

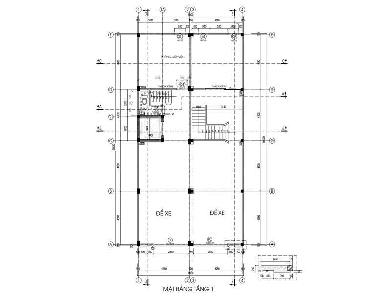
Mặt bằng tầng 1: Mẫu nhà 7 tầng phong cách tân cổ điển sang trọng
Không gian tầng 1 của ngôi nhà được sử dụng hoàn toàn để làm nhà để xe. Với nhu cầu để kinh doanh và ở, thì diện tích sử dụng cho việc để xe là vô cùng cần thiết và quan trọng. Có cầu thang bên trong và thang máy sử dụng cho toàn bộ tòa nhà là cách để bạn có thể tận dụng được toàn bộ không gian diện tích này để để xe, sử dụng cho nhu cầu kinh doanh và để ở cho gia đình mình.
Trên đây là toàn bộ phương án thiết kế, cải tạo và thi công mẫu nhà 7 tầng phong cách tân cổ điển tại Hà Nội mà MONEO đã thực hiện cho chủ đầu tư. Rất nhiều công trình ấn tượng và độc đáo khác được chúng tôi lựa chọn và đem đến cho khách hàng những trải nghiệm kiến trúc tốt nhất. Bạn có thể liên hệ trực tiếp với KTS của chúng tôi để được tư vấn và giải đáp mọi thắc mắc có liên quan:
Hotline: 0945.66.16.16
Đăng ký tài khoản
Đăng nhập tài khoản